Alpweg 9

3987 Riederalp

Schweiz

 

Koordinaten Chalet Balfrin Riederalp

 

46.37914° N, 8.04656° O

Chalet

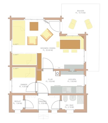
Wir vermieten die Wohnung im 1. Stock des Chalet Balfrin (max. 6 Betten).

 

Die Wohnung besteht aus einer geräumigen Stube, welche ein ausziehbares Bett beinhaltet und eine Polstergruppe. Ebenfalls bietet ein Etagenbett Platz für weitere zwei Personen. 

 

Kinderzimmer mit Etagenbett, Tisch und Stuhl (Kinderbett auf Wunsch vorhanden).

 

Neue Küche mit Durchreiche zur Essecke in der Stube. In der Küche gibt es eine Geschirrwaschmaschine, Nespresso Kaffeemaschine (ohne Kapseln) und ein Kühlschrank mit Gefrierabteil.

 

Neue Dusche mit WC / Föhn

 

Internetanschluss, Telefon, Sat TV, Radio (Kassettenrecorder, CD-Player).

 

Hunde sind nicht erlaubt.

 

Grundriss

Grundriss
Grundriss

Fotos